we make smart
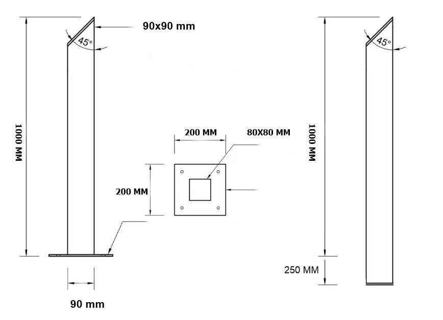
Codigo 321208
Categoría: En acero y acero inoxidable
Per visualizzare correttamente questo sito è necessario abilitare JavaScript nel browser.